Verkocht onder voorbehoud

Verkocht onder voorbehoud: Verlengde Vaart Nz 72B, 7887 EH Erica

€ 299.000,- k.k.

Beschrijving

Waar vind je dat nou: een vrijstaand huis met genoeg ruimte, twee keukens en badkamers?
Op de Verlengde Vaart Nz 72-B in Erica staat deze ruime vrijstaande helemaal klaar voor haar volgende bewoners.

Unieke woning; dubbele badkamer en keukenopstelling !
Je vindt in dit huis niet één, maar twéé keukens en twéé badkamers! Zowel op de begane grond als op de verdieping zijn ze aanwezig. Dat maakt samenwonen ineens heel aantrekkelijk, want je hebt altijd je eigen plekje om koffie te zetten, te koken, of gewoon te chillen. Ideaal als je met twee gezinnen woont of als je ouders wat vaker over de vloer (of zelfs onder hetzelfde dak) hebt.
Met een perceel van maar liefst 409 m² kun je alle kanten op. Je ontvangt vrienden gerust voor een barbecue, terwijl de kinderen in de tuin ravotten.

Erica: dorps, gezellig en alles dichtbij
Erica is landelijk, rustig en hartstikke gemoedelijk. Voor boodschappen spring je op de fiets naar het winkelcentrum in de buurt, scholen liggen op loopafstand, en sportfaciliteiten zijn genoeg voor liefhebbers van voetbal, handbal noem maar op.

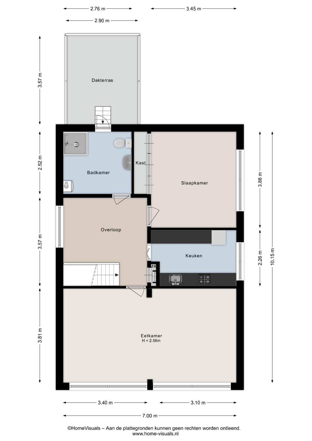
Indeling

Ruime hal geeft toegang tot de woonkamer, badkamer en de berging.
De afgesloten keuken beneden is voorzien van een hoekkeuken en heeft uitzicht over de achtergelegen tuin.
Achter de woning een aangebouwde berging met eigen toegangsdeur.

Eerste verdieping

Via de overloop kom je in de verrassend ruime slaapkamer over de volledige breedte aan de voorzijde. (eventueel op te splitsen tot 2 slaapkamers is mogelijk).
Een tweede keuken is aanwezig in het midden.
Aan de achterzijde een tweede slaapkamer en tenslotte een zeer ruime badkamer met balkondeur en toegang tot het dakterras.

Tuin

De tuin is afgeschermd, op het noorden gelegen en voorzien van een garagebox.
Deze is te bereiken via de zijkant van de woning (er is recht van overgang /-pad om bij de garage te komen).

Bijzonderheden

Ruime woning aan doorgaande straat tegenover vis- en vaarwater.

Voor meerdere doelgroepen geschikt:
* Twee badkamers
* Twee keukens aanwezig.
* Nette en degelijke woning.

Een bezichtiging plannen? Neem dan contact op met Vodoz makelaardij voor het maken van een afspraak.
Deze informatie is door ons met de nodige zorgvuldigheid samengesteld. Er wordt echter geen enkele aansprakelijkheid aanvaard voor enige onvolledigheid, onjuistheid of dan wel de gevolgen daarvan. Alle opgegeven maten en oppervlakten zijn indicatief. Van toepassing zijn de voorwaarden van Vastgoed Ned.

Kenmerken

Overdracht
Referentienummer 05895
Vraagprijs € 299.000,- k.k.
Status Verkocht onder voorbehoud
Aanvaarding In overleg
Aangeboden sinds Dinsdag 27 januari 2026
Laatste wijziging Zaterdag 21 februari 2026
Bouw
Type object Woonhuis, eengezinswoning, vrijstaande woning
Soort bouw Bestaande bouw
Bouwperiode 1968
Dakbedekking Bitumen
Type dak Platdak
Oppervlaktes en inhoud
Perceeloppervlakte 409 m²
Woonoppervlakte 143 m²
Inhoud 534 m³
Oppervlakte overige inpandige ruimten 10 m²
Oppervlakte externe bergruimte 18 m²
Oppervlakte gebouwgebonden buitenruimte 32 m²
Indeling
Aantal bouwlagen 2
Aantal kamers 3 (waarvan 2 slaapkamers)
Aantal badkamers 2
Energieverbruik
Energielabel D
Kadastrale gegevens
Kadastrale aanduiding Emmen G 7894
Perceeloppervlakte 409 m²
Omvang Geheel perceel
Eigendomsituatie Eigen grond
Neem contact met mij op

Plattegronden

Brochure(s) en overige bijlagen